Die hauseigene
Wellnessoase
Gönnen Sie sich eine Auszeit von Ihrem Alltag und genießen Sie unvergessliche Stunden in geschmackvollem Ambiente.
Tauchen Sie ein und entspannen Sie sich
Der Wellnessbereich wurde 2006/2007 neu errichtet und bietet alles, was das Herz begehrt.
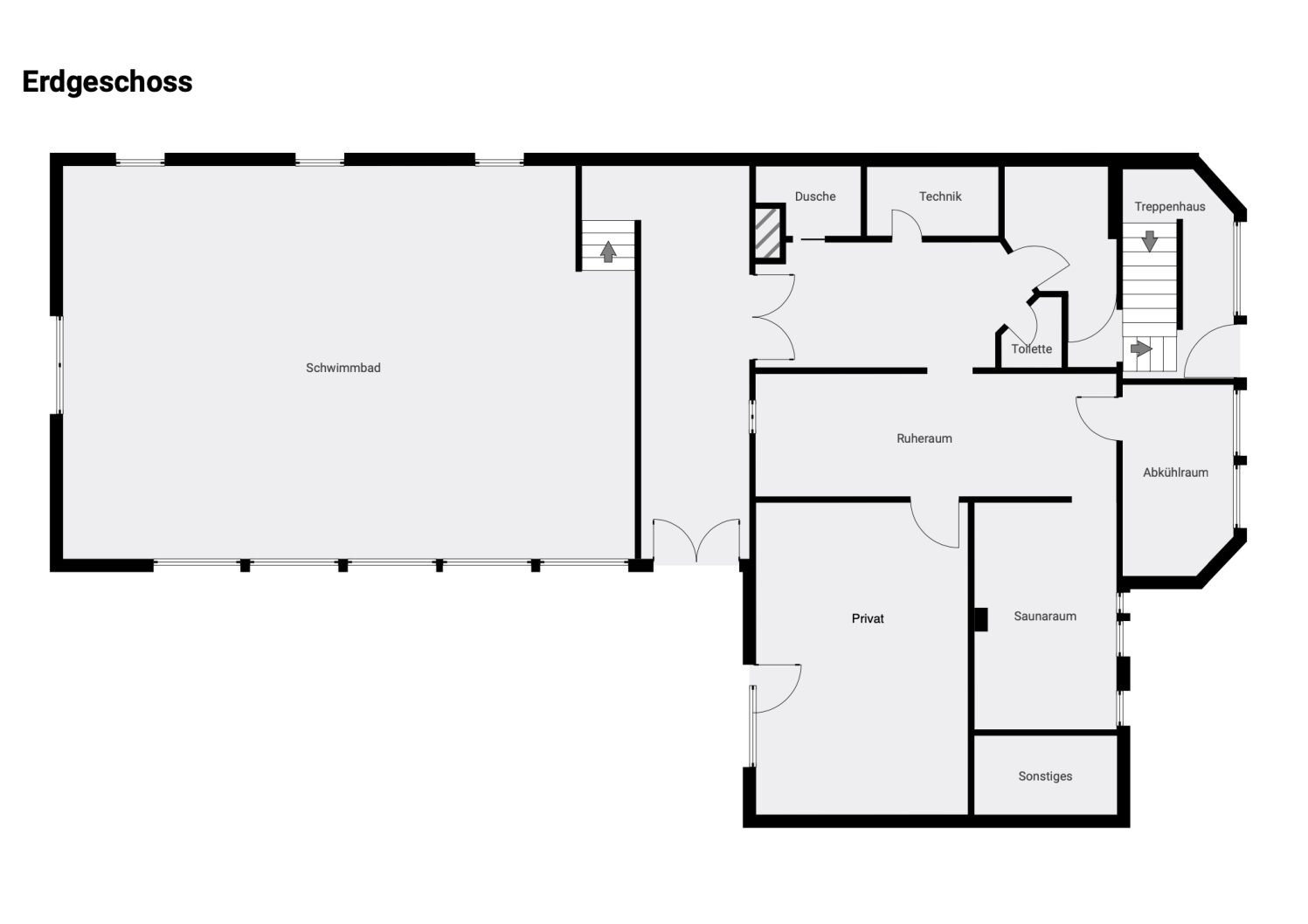
Ihnen steht ein Pool mit einer Größe von 8 x 4 Metern zur Verfügung. Im Poolgebäude können Sie sich zwischen den Badegängen auf komfortablen Liegen ausruhen und neue Kraft tanken. Ebenso eröffnen die großen Fenster einen einmaligen Gartenblick. Die Wassertemperatur sowie Lufttemperatur im Poolgebäude betragen durchschnittlich 26 – 28°C.
Unsere zwei verschiedenen Saunen bringen Ihren Kreislauf wieder in Schwung.
Finnische Sauna
Die finnische Sauna wird optimal auf 80 bis 90 °C aufgeheizt. Diese Temperatur ist die empfehlenswerteste Art zu schwitzen, ohne sich körperlich anstrengen zu müssen.
Infrarotsauna
Die Wärme dieser Sauna wird durch Infrarotstrahlen erzeugt, welche unter die Haut gehen und somit den Körper von Innen wärmt. Die Temperatur steigt hier nicht höher als 60 °C.
Der Whirlpool Tubilicious der Firma Coast Spas® nur für Sie
Legen Sie sich hinein und lassen Sie sich mithilfe der 14 Düsen verwöhnen. Das integrierte Microsilk® System regt durch Mikroluftblasen zudem die natürliche Kollagenproduktion Ihrer Haut an.
Wir bieten Ihnen mit den brainLight®-Systemen ein einmaliges Erlebnis.
Die Anwendungen im 4D Zenesse Massagesessel von brainLight® ist wohltuend und entspannend. Folgende unmittelbare Wirkungen sind nach der Anwendung laut brainLight® spürbar:
• sofortiger Stressabbau
• tiefe Entspannung schon nach ca. 5-10 Minuten
• Ersatz für ca. 2 Stunden Schlaf (tiefe Regeneration)
• Therapievorbereitung und -unterstützung
• Zugang zur rechten Gehirnhälfte und damit zum
Unterbewusstsein
• Vernetzung der beiden Gehirnhälften
• Vertiefung von Lerninhalten und Aufnahme ins Lang-
zeitgedächtnis
Grundriss


